Summer Cottages
Summer Cottage
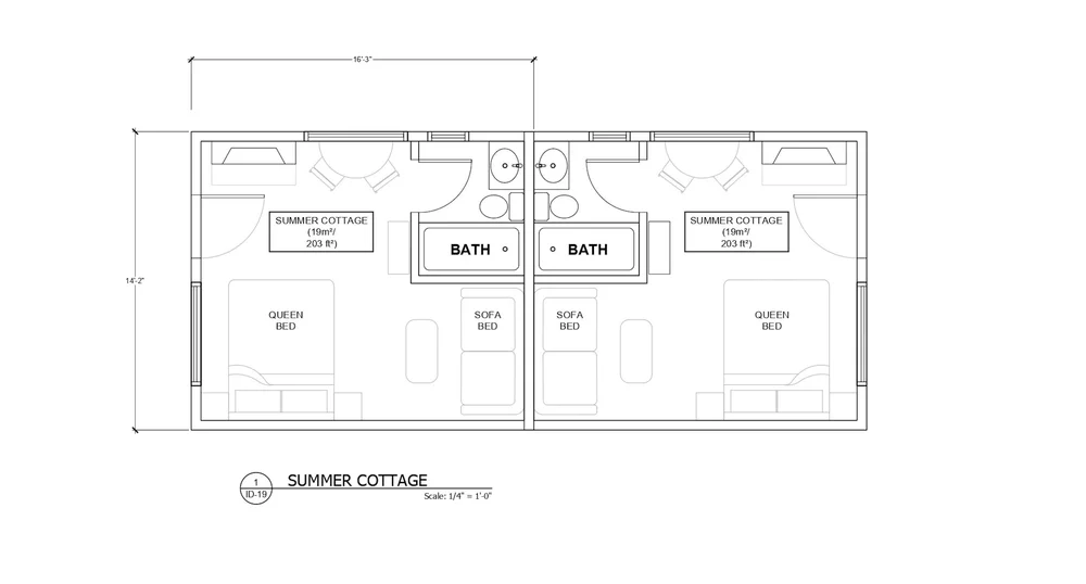
The Summer Cottage is an open concept, quaint, cozy cabin in a duplex arrangement. It offers a warm atmosphere ideal for short stays—especially for close friends or couples seeking a rustic getaway.
These cabins are not available during the winter season.

2 people

1 queen sized bed, 1 sofa

kettle, coffee maker; no fridge

tub shower combination

ground floor

dogs friendly

no A/C

19 m² / 203 ft²